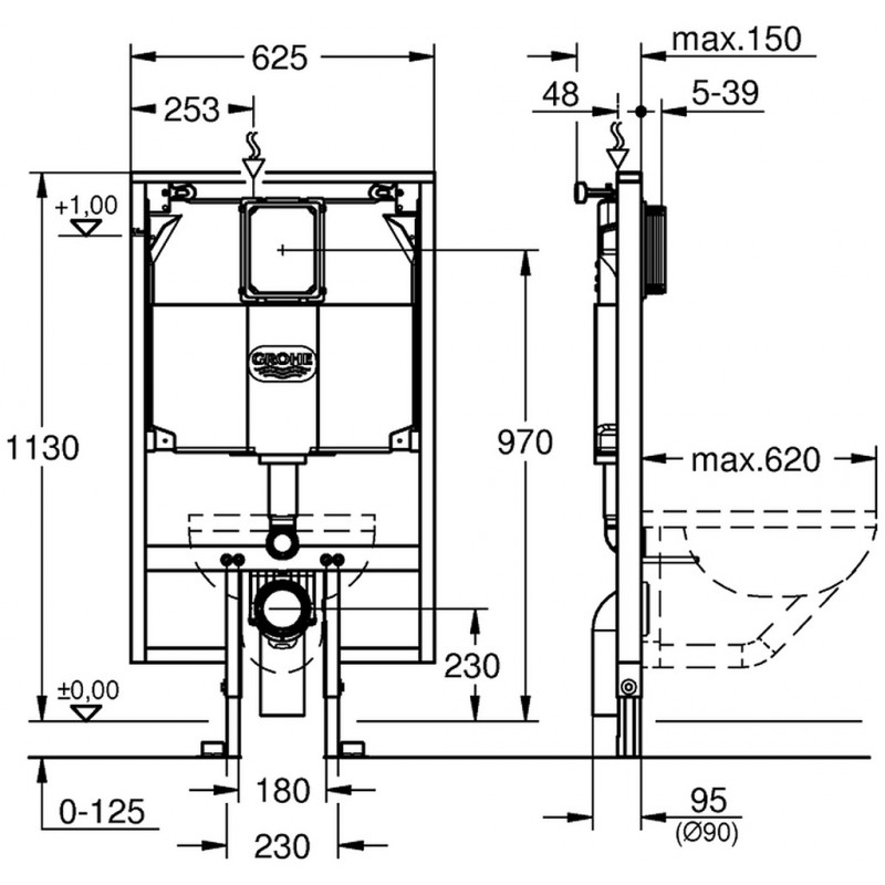
GROHE Rapid SL WC tartály szerelőkeret, 80 mm, 1,13 m telepítési magasság 38994000
Leírás
Jellemzők:
• szerelőelem szélesség 0,62 méter
• kicsi, keskeny fürdőszobákhoz
• előfalas vagy válaszfalba szereléshez
• önhordó acélkeret porszórt bevonattal
• száraz burkoláshoz, komplett előszerelt
• rögzített szerelvénycsatlakozók
• gyors állítási lehetőség, fixálható
• rögzítőelemek
• TÜV-bevizsgált
• 2 WC-tartócsavar
• szaniter-rögzítő készlet
• gyárilag 6 és 3 literre beállítva
• be- és lefolyógarnitúra
• PP szűkítő O 90/110 mm
• mélységállítási lehetőséggel
• PP kimeneti könyök O 90 mm
• tartócsavarok távolsága: 180/230 mm
• alacsony zajszint (I-es szerelvénycsoport)
• páralecsapódás ellen szigetelt
• vízellátás 1" és betolás-rugalmas tömlőcsatlakozó
• a revíziós ajtó beszereléséhez nem szükséges szerszám, amely védelmet nyújt a tartály belsejének az építkezés későbbi szakaszaiban
• függőleges használat (nyomólapok)
• tartalmazza a 38 558 00M fali rögzítóket a falra történő felszereléshez
• kis méretű nyomólapok felszereléséhez kérjük, rendeljen kis revíziós nyílást 40 949 000 (külön megvásárolható)
Törekszünk a webáruházban megtalálható információk, termékleírások pontos és hiteles közlésére, olykor azonban ezek önhibánkon kívül tartalmazhatnak téves információkat. A képek csak tájékoztató jellegűek.
- Um nach Deutschland zu versenden, besuchen Sie GROHE Rapid SL Vorwandelement für WC mit Spülkasten 80 mm, Bauhöhe 1,13 m 38994000
- Um nach Österreich zu versenden, besuchen Sie GROHE Rapid SL Vorwandelement für WC mit Spülkasten 80 mm, Bauhöhe 1,13 m 38994000
- Pro odeslání do Česka navštivte GROHE Rapid SL Modul pro WC s nádržkou 80 mm, stavební výška 1,13 m 38994000
- Aby wysłać do Polski odwiedź GROHE Rapid SL do WC ściennego, spłuczka 80 mm, wysokość zabudowy 1,13 m 38994000
- Pre odoslanie na Slovensko navštívte GROHE Rapid SL Modul pre WC s nádržkou 80 mm, stavebná výška 1,13 m 38994000
Beszélgessünk róla! Értékelések (0)
Értékelés írása
Termék értékelése: Rossz Kitűnő
Másolja be a lenti kódot:

