GEBERIT Duofix szerelőelem, Sigma 12 cm-es öblítőtartály, állítható magasság 111.396.00.5
Leírás
Jellemzők:
• Porszórt önhordó keret
• Csökkentett keretszélesség a kapaszkodók szerelőelem melletti elhelyezéséhez
• A WC-kerámia magassága a kész fürdőszobában utólagosan állítható, 41–49 cm a kész padlótól
• Horganyzott láb
• 0–20 cm között állítható lábazat
• Pozíciómegtartó lábrögzítés
• Forgatható rögzítő talpak
• Kihúzható csatlakozókönyök
• A csatlakozókönyök függőlegesen vagy vízszintesen is felszerelhető a szerelőelemre
• A csatlakozókönyök rögzítése hangszigetelt
• Falsík alatti öblítőtartály elölről történő működtetéssel
• Páralecsapódás ellen szigetelt, falsík alatti öblítőtartály
• Gyári beállítás esetén azonnali utánöblítés lehetséges
• A falsík alatti öblítőtartályon a szerelési és szerviz munkálatok szerszám nélkül elvégezhetők
• Vízcsatlakozás középen, hátulról vagy fentről
• A szerviznyílás építési törmelék elleni védőfedele véd a nedvessétől és a szennyeződéstől
• A csempézősablon méretre vágható
• Geberit AquaClean higiéniai berendezés vízcsatlakozásához védőcsővel felszerelve
• Rögzítési lehetőség elektromos csatlakozás számára
Alkalmazási célok:
• Szárazépítéshez
• Parapet vagy teljes belmagasságú előtétfalakba történő beépítéshez
• Teljes belmagasságú szerelőfalakba történő beépítésre
• Előfalakhoz való Geberit GIS tartósín rendszerekbe történő beépítésre
• Akadálymentes építésre alkalmas
• EN 33:2011 szerinti csatlakozóméretű fali WC-khez
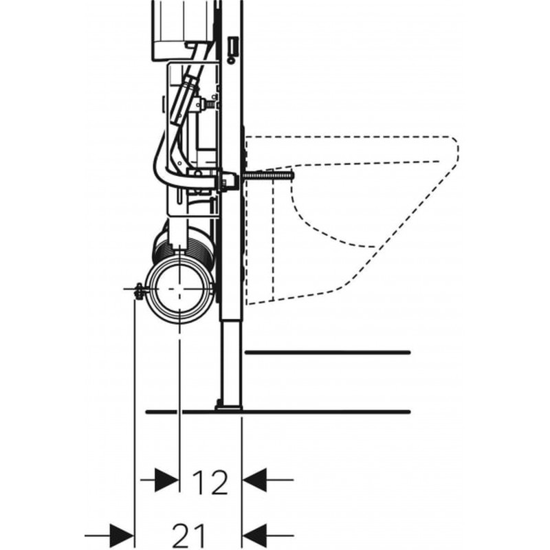
• Fali WC-khez 18 cm rögzítési távolsággal
• Fali WC-khez max. 70 cm megnövelt hosszal
• 0–20 cm vastag padlószerkezetekhez
• Nem alkalmas Geberit Sigma60 működtetőlapokhoz
Műszaki adatok:
• Víznyomás: 0.1-10 bar
• Maximális vízhőmérséklet: 25 °C
• Öblítővíz-mennyiség gyári beállítása: 6 és 3 l
• Nagy öblítővíz-mennyiség beállítási tartománya: 4.5 / 6 / 7.5 l
• Kis öblítővíz-mennyiség beállítási tartománya: 3-4 l
• Mértékadó térfogatáram: 0.11 l/s
• Mértékadó térfogatáramra vonatkozó minimális folyási nyomás: 0.5 bar
A csomag tartalma:
• Vízcsatlakozás R 1/2”, MF kompatibilis, beépített sarokszeleppel és kézikerékkel
• Csempézősablon
• 2 törmelék elleni védődugó
• Csatlakozókészlet WC-hez, o 90 mm
• 90°-os PE-HD csatlakozókönyök, o 90 mm
• PE-HD adapter, o 90/110 mm
• 2 db M12-es menetes szár
• Törmelék elleni védőfedél az öblítőív és a csatlakozókönyök állítási tartományához
• Csatlakozó doboz o 68 mm-es rögzítőfurathoz, elektromos csatlakozáshoz
• Rögzítőanyag
Törekszünk a webáruházban megtalálható információk, termékleírások pontos és hiteles közlésére, olykor azonban ezek önhibánkon kívül tartalmazhatnak téves információkat. A képek csak tájékoztató jellegűek.
- Um nach Österreich zu versenden, besuchen Sie Geberit Duofix Element für Wand-WC, 112 cm, mit UP-Spülkasten 111.396.00.5
- Um nach Deutschland zu versenden, besuchen Sie Geberit Duofix Element für Wand-WC, 112 cm, mit UP-Spülkasten 111.396.00.5
- Pro odeslání do Česka navštivte Geberit Duofix montážní prvek pro závěsné WC, 112 cm, s nádržkou 111.396.00.5
- Aby wysłać do Polski odwiedź Geberit Duofix Element montażowy do wiszących misek WC, 112 cm, do poręczy 111.396.00.5
- Pre odoslanie na Slovensko navštívte Geberit Duofix montážny prvok pre závesné WC, 112 cm, s nádržkou 111.396.00.5
Beszélgessünk róla! Értékelések (0)
Értékelés írása
Termék értékelése: Rossz Kitűnő
Másolja be a lenti kódot:

