ALCAPLAST falsík alatti WC tartály szellőző előkészítéssel száraz szereléshez AM101/1120V
Leírás
ALCAPLAST falsík alatti WC tartály szellőző előkészítéssel száraz szereléshez AM101/1120V
Jellemzők:
- Tartalmazza a WC tabletta adagolót
- Szagelszívás közvetlenül a WC csészéből
- A ventilátorra való csatlakozás lehetősége (nem része a csomagolásnak)
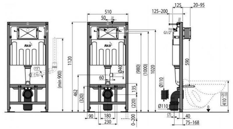
- Az ajánlott ventilátort, melynek áramlási sebessége 30 m3/h, 60 Pa nyomással, visszacsapó szeleppel, a talajtól min. 1,2 m magasságban kell elhelyezni
- Állítható horgonyláb fékkel, 0–200 mm fesztávolságban
- A szintező és a középvonal látható megjelölése
- A szennyvízcső tartójának mechanizmusa nyolc pozícióban állítható 0–93 mm távolságban
- Sarokszelep lehetséges csatlakozása Mepla csőrendszerhez
- A keret szerkezete lehetővé teszi a rögzítést a különálló kellően tartó gipszkartonfalhoz vagy tartófal elé
- A beépített rendszert gipszkartonnal befedik és nincs szükség további merevítésre vagy rögzítő elemekre
- A polisztirol szigetelésének szerkezete megakadályozza a páralecsapódás képződését a tartály felületén és tompítja a tartály rezgését
- Előkészítés a bidés WC ülőke és a kézi bidé zuhany DG1/2" tartójának csatlakozásához
- Kettős öblítés függetlenül állítható, higiéniai tartalékkal
- Alkalmas a távolabbról való vagy érzékelős öblítés beszereléséhez
- Kompatibilis az összes Alcaplast nyomólappal
- Karbantartás szerszám nélkül
- Vízcsatlakozás hátulról/felülről középen
- A tartály egy darabból készül, így biztosítva a 100%-os vízzárást
- A szerelőnyílás fedele egyszerűsíti a szerelést és megakadályozza a nedvesség és szennyeződés bejutását
- Állítható szerelési mélység 20–95 mm
- Szerelési mélység 125 mm
- A tartószerkezet anyaga: fém porszórt felülettel
Alkalmazás:
- Függesztett WC–hez
- Tartófal elé vagy gipszkarton szerkezetbe való falsík alatti szereléshez
- 0–200 mm-es padló vastagsághoz
- Szellőztető rendszerhez való csatlakozáshoz
- Függesztett WC szereléséhez 180 mm vagy 230 mm csatlakozással
Műszaki adatok:
- Vízcsatlakozás hátulról vagy felülről a szerelési nyílásokon keresztül: G1/2 "
- Víznyomás terjedelem: 0,05 – 1,6 MPa
- Javasolt víznyomás terjedelem: 0,3 – 0,5 MPa
- Nagy öblítés: 6 – 9 l
- Kis öblítés: 2,5 – 3,5 l
- A nagy öblítés alapbeállítása: 6 l
- A kis öblítés alapbeállítása: 3 l
- Higiénikus tartalék: 3 l
- A víz térfogata a tartályban: 9 l
- Terhelési próba: 400 kg
A csomag tartalma:
- Tartály töltő és leeresztő szeleppel
- Önhordó keret
- 1/2" csatlakozó a víz bekötéséhez integrált Schell 1/2"–3/8" sarokszeleppel
- Rögzítő szett: csavar O8×60 – 4 db, tipli O12 – 4 db
- Rögzítő anyag a bidé rögzítéséhez: menetes szár M12 – 4 db, 2 db alátét, fedő 2 db, anya 2 db, menetvédő kupak 2 db
- Szennyvízcső HT 90/90 polietilén, PE-HD
- Szűkítő HT 90/110 polietilén, PE+HD
- Befolyócső tömítés, kivezetés polipropilén, mandzsetta betét
- Szennyvízlefolyó tömítés, polipropilén csatlakozócső, csatlakozócső tömítés
- Szerelő nyílás fedél,a szerelő nyílás takarására beépítékor
- A szerelőnyílás fedele kétrészes, egyszerűen rövidíthető
- HT könyök szellőztető rendszerhez való csatlakozáshoz
- Dugó a szellőztető nyílás lezárásához ha nem használják
Törekszünk a webáruházban megtalálható információk, termékleírások pontos és hiteles közlésére, olykor azonban ezek önhibánkon kívül tartalmazhatnak téves információkat. A képek csak tájékoztató jellegűek.
- Pro odeslání do Česka navštivte ALCAPLAST Sádromodul, systém s odvětráváním pro suchou instalaci AM101/1120V
- Pre odoslanie na Slovensko navštívte ALCAPLAST Sádromodul, systém s odvetrávaním pre suchú inštaláciu AM101/1120V
Beszélgessünk róla! Értékelések (0)
Értékelés írása
Termék értékelése: Rossz Kitűnő
Másolja be a lenti kódot:

